Продам дом, коттедж 95 м.кв.

на карте
Просмотров 5
12 000 000 руб.
Киржач , деревня Ивашево, Центральная ул.
Алексей
Показать телефон
Данные актуальны на 17.03.2026
Пожаловаться на объявление
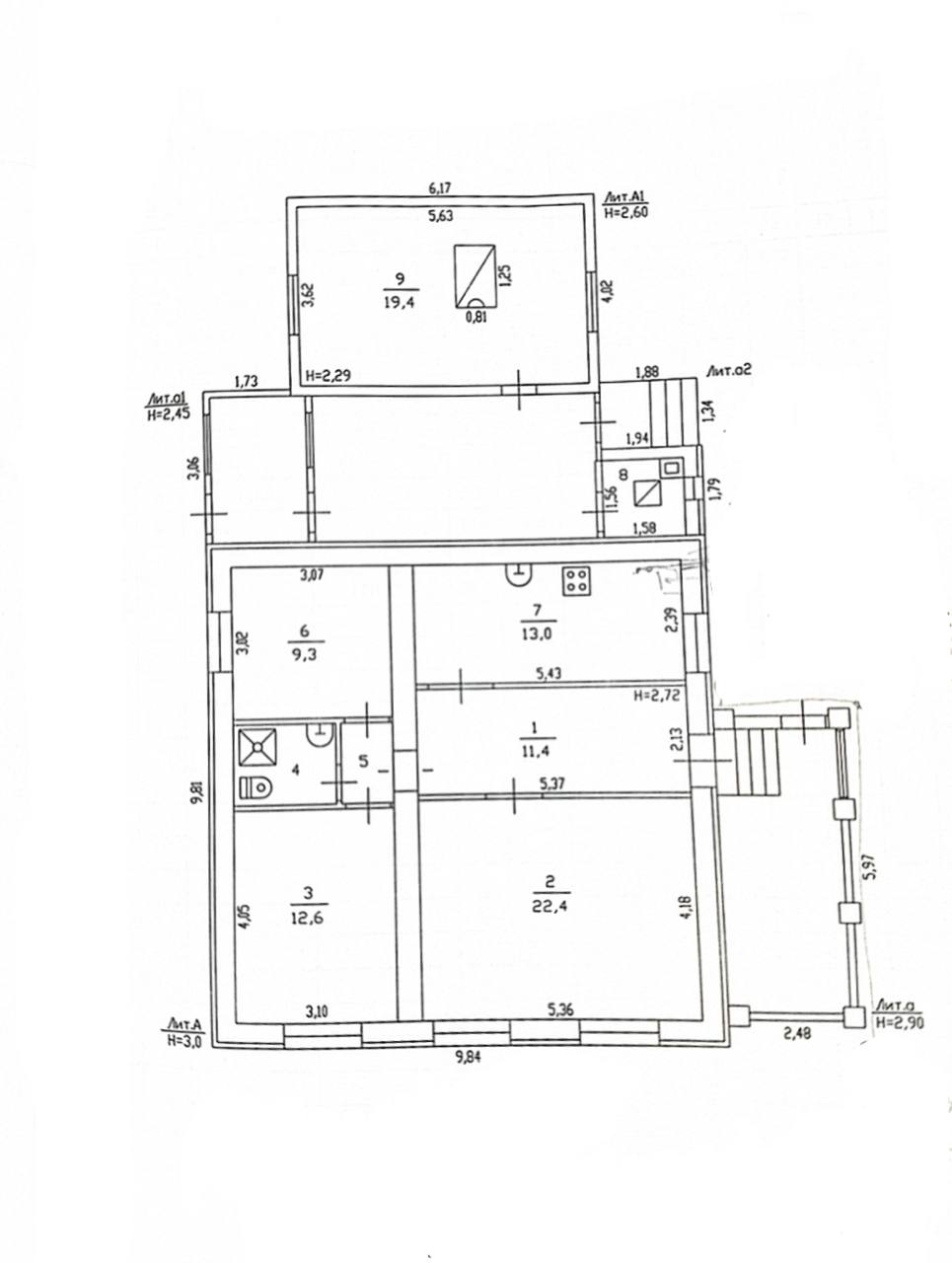
Продается добротный и теплый кирпичный дом в спокойной, но живой деревне. До г. Киржач - 15 минут на автобусе. Вокруг прекрасная природа, лес и река недалеко. Соседи живут постоянно, зимой снег регулярно чистят техникой. Назначение земли - ИЖС, в доме никто не прописан. Свободная продажа. Характеристики предложения: Основной дом - кирпич, общая площадь 95 кв.м. Кухня - 13 кв.м (есть погреб для хранения заготовок) , гостиная - 22,5 кв.м, две жилые комнаты - 12,6 и 10 кв.м, санузел с душевой кабиной. Отопление - магистральный газ, водоснабжение - своя скважина, канализация - септик. Кондиционирование. Кабельный интернет. Онлайн камеры наблюдения. Есть летняя жилая пристройка к основному дому с печкой, возможно обустроить второй этаж (есть, но не используется). Так же на участке - большая летняя закрытая беседка, баня - в основе сруб 2.5х4, хозпостройки, большой кирпичный гараж. Земельный участок прямоугольный, общая площадь 30 соток. Грядки, плодовые деревья. Простая продажа, без альтернатив и обременений. Агентам - вознаграждение. Посещение дома - по предварительной договоренности.

Параметры здания

Тип дома Кирпичный Год постройки 2013 Количество этажей 1 Туалет Есть Отопление Есть Возможность прописки -
Электричество Есть Газ Есть Вода Есть Канализация Есть Гараж -

Параметры объекта

Количество комнат 3 Покрытие пола - Телефон Есть Интернет Есть
Мебель Есть Бытовая техника - Кондиционер -

Параметры продажи

Тип продажи - Торг -
Ипотека Да

Параметры участка

Площадь участка 3000 м.кв.
Динамика изменения цен на рынке недвижимости ?

За последние полгода средняя сумма за кв.м. выросла на 5686 руб. Колебание цен происходило от 42968 руб. до 48654 руб. Тендов к значительному изменению цены в последнем месяце не наблюдается.
Вход в личный кабинет